SEARCH
土地・住まいを探す中古物件
- NEW
- 和歌山市北部
クローバーメゾン狐島
2026/03/03更新
-
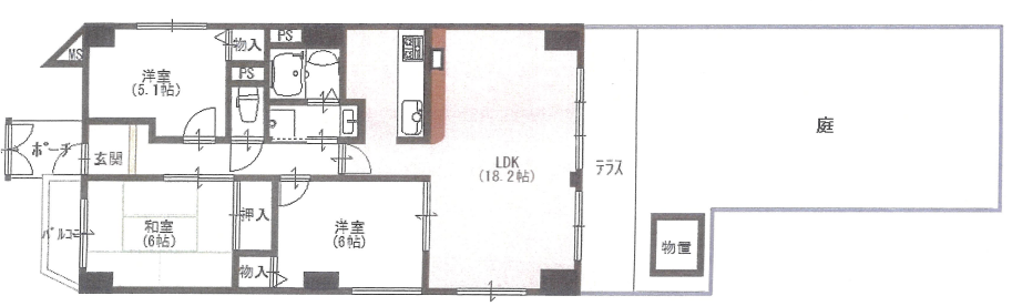
令和4年リフォーム済!ゆとりある専用庭&テラス付き!LDKは18.2帖と広々
-
-
-
【LDK/18.2帖】 生活のメインスペースとなるLDKは、18.2帖の広々空間
-
【浴室】 1日の疲れを癒してくれる浴室
-
【専用庭】 広々とした専用庭が設けられています
-
-
【玄関】 下足入が設けられています
-
【トイレ】 ブルーのアクセントクロスが印象的なトイレ
-
【和室/6帖】 バルコニーに面した和室です
-
【和室/6帖】 LDKから離れた独立性の高いお部屋です
-
【キッチン】 3口ガスコンロ+グリル付きのシステムキッチン
-
-
【LDK/18.2帖】 LDKの掃き出し窓を開けると、テラス・専用庭へ繋がっています
-
【LDK/18.2帖】 玄関とLDKの間にドアがあります
-
【LDK/18.2帖】 ダイニングセットやカウチソファを置けるゆとりがあります
-
【洗面室】 洗面化粧台の鏡周りとボウル下に収納が備わっています
-
-
担当者からのコメント
-
担当者からのコメント
この物件は、野田が担当いたします。
■南海加太線「東松江」駅まで徒歩17分の立地。
■LDKは隣接する洋室との一体利用で、24.2帖のゆとりある空間に。
■キッチンは対面式につき、作業中もLD全体やテラスの様子を見渡せます。
■バルコニー、テラス、専用庭あり。用途別に使えて便利です。
物件概要
| 物件名 | クローバーメゾン狐島 |
|---|---|
| 物件番号 | N25-554 |
| 取引態様 | 仲介 |
| 交通 | 南海加太線「東松江」駅 徒歩17分 |
| 学校区 | 野崎西小学校、河北中学校 |
| 間取り | 3LDK |
| 建物種別 | マンション |
| 建物構造 | SRC造/9階建 |
| 建築年月 | 平成4年10月 |
| 駐車場 | 空きあり(要確認) |
| 設備 | ガス・電気・水道 |
| 販売価格 | 830万円 |
|---|---|
| 用途地域 | 第一種住居地域 |
| 現況 | 居住中 |
| 取引時期 | 相談 |
| 土地権利 | 所有権 |
| 備考 | ■管理費:9,900円■修繕積立費:4,800円■専有面積:壁芯69.80㎡■土地持分総面積:5104.67㎡■土地持分:7245/952404■駐車場:月額7,350円(空き要確認)■施工会社:株式会社松本組■管理会社:関電コミュニティ/全部委託■リフォーム歴:令和2年 室内/令和4年9月 風呂・洗面・給湯器の交換■専用庭:1200円/月 |

